
Pallacia
Pallacia
Jaipur. Rajasthan
A landmark of luxury encircling Jaipur’s Statue Circle, where terraced homes, dramatic light wells, and grand civic gestures redefine high-end living in the city’s historic heart.
Client
OM Metals Consortium Pvt. Ltd.
Type
Apartments
Built-up Area
92,900
sqm
Site Area
20,234
sqm
Status
Ongoing
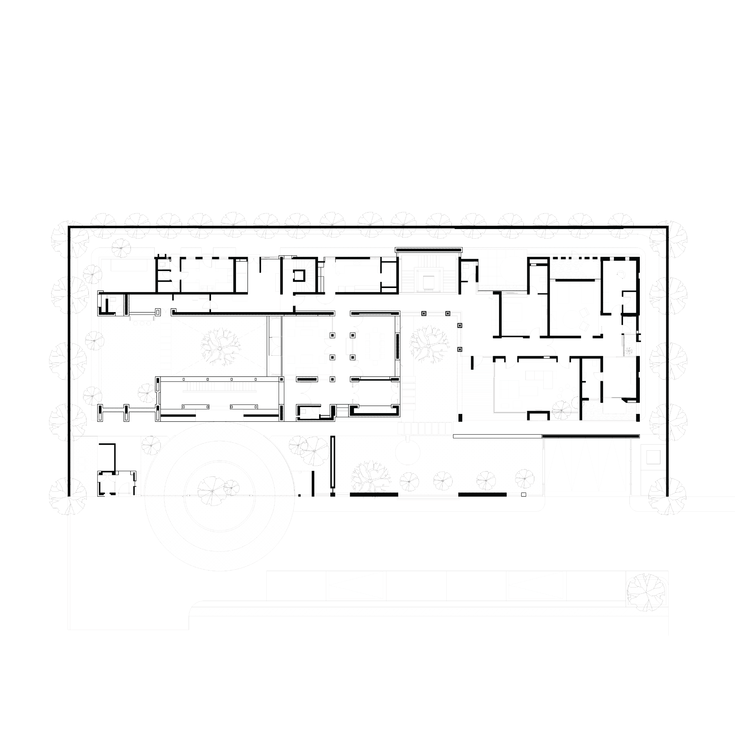
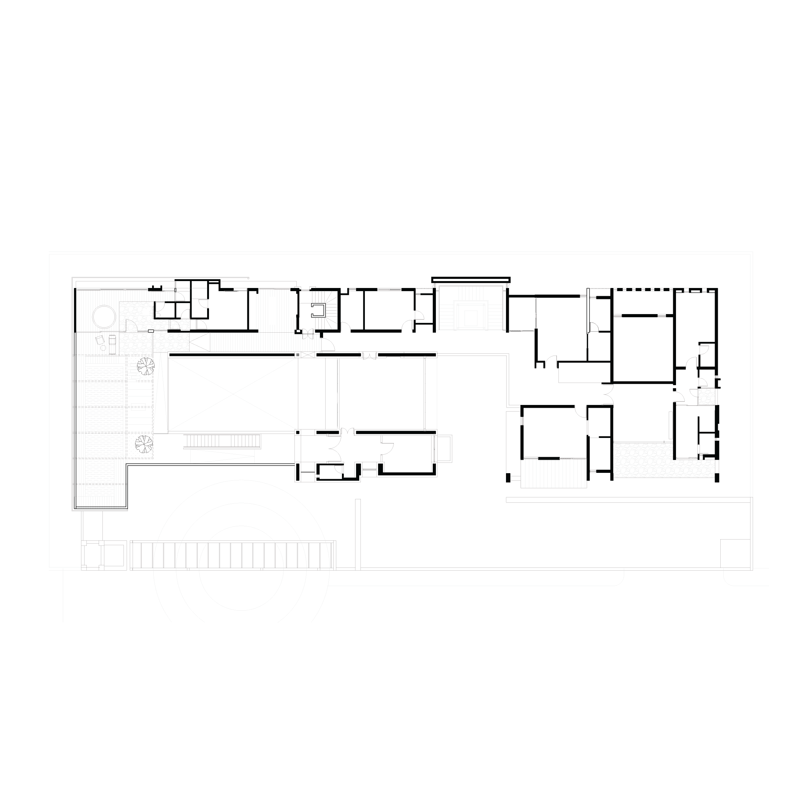
This high-end residential development takes pride of place at one of the few exclusive sites encircling the Statue Circle, a memorial of Jaipur founding. In collaboration for Concept with the international firm, Studios NY, the development is an innovative architectural response to the unique site potential. It creates a cascade of terraced homes along the circular axis within the rectangular monolith of the building. The design is a study of negative spaces carved from the monolithic block, creating dramatic entries to the campus and various tower lobbies. They are also used to create cool light wells to penetrate light and ventilation into the deeper recesses of the linear apartments.
The project offers a complex configuration of single and multi-level apartments at upper floors and garden villas at the lower floor with expansive Club areas integrated into the Central Court gardens. The grand Concierge Lobby sets the tone of luxury and fine living for the development while concealing the inner court from the sight and sounds of the busy street it opens on to. The massive building bridge element above it is a tribute to the importance of the site context and lends the character to its name, evoking a sense of palatial dimensions.
The project offers a complex configuration of single and multi-level apartments at upper floors and garden villas at the lower floor with expansive Club areas integrated into the Central Court gardens. The grand Concierge Lobby sets the tone of luxury and fine living for the development while concealing the inner court from the sight and sounds of the busy street it opens on to. The massive building bridge element above it is a tribute to the importance of the site context and lends the character to its name, evoking a sense of palatial dimensions.
Team
Sharad Maithel, Sangeeta Maithel, Balwant Singh, Manoj Jangid, Puneet Dua

Countyard view blending greenery and stone built heritage with contemporary living space in a joint family home.

Elevation

Enhancing shared moments through living spaces.

Open, nature-integrated classrooms enhance air quality, boost well-being, reduce stress, and foster creativity and collaboration.
The provision of spaces within the design is carefully tailored to meet the client’s requirements while maintaining a sense of community and harmony. Core functional areas such as the living space, swimming pool, bar, and gazebo serve as shared zones that foster interaction and togetherness among users. These spaces are thoughtfully integrated with well-planned landscaped zones, ensuring a seamless connection between built and natural environments. The landscape not only enhances the aesthetic appeal but also creates a calming and cohesive atmosphere, blurring the boundaries between indoor and outdoor experiences. Overall, the design emphasizes functionality, social engagement, and a deep connection with nature.

Ground Floor

First Floor

View 1

View 2

View 3